One of Palm Beaches most elegant contemporary home. Live the convenience of a Breakers' penthouse residence but the privacy of a single family home. Gardens, pool, ocean access and cabana. Garden statues do not convey. Chandeliers do not convey.

Community Specialist




John Abdelsayed
561-900-5200
john@trendsrealty.com



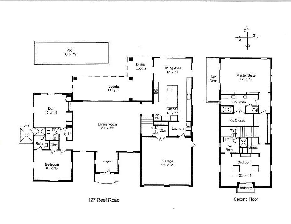
Property Address127 Reef Road, Palm Beach, FL 33480
CommunityPalm Beach
Property TypeSingleFamilyResidence
Price$ 6,700,000
Bedrooms3
Full Bath3
Half Bath1
Living sqft3,936
Total sqft4,808
Year Built2015
Total Floors2
Total Units In Complex0
HOA fee0
Pets AllowedNoPetRestrictions,Yes
Elementary School
Middle School
High School
Courtesy OfThe Corcoran Group